LARGOS DO PELOURINHO SALVADOR BAHIA
concours d'idées en procèdure ouverte 2012 |
Abordar o Pelourinho como um todo, enquanto um verdadeiro centro; um centro cultural único e exceptional situado à céu aberto no coração da cidade de Salvador, respeitando a história do lugar, os usuários e os habitantes do seu entorno.
O conjunto dos largos é tratado como uma única rede de ação solidária. Intervenções comuns inter-ligam todos eles, mas cada um guarda sua própria identidade, relacionada à sua morfologia, ocupação e vocação de usos, criando assim uma diversidade de oportunidades.
O objetivo é fazer com que estes espaços emblemáticos muito tempo relegados pela própria população, por serem considerados espaços do outro ou espaços de ninguém, tornem-se públicos e passem a ser espaços de todos.
Criar espaços urbanos flexíveis em seu uso, capazes de abrigar diversas atividades culturais de diferentes portes ao longo de todo o dia, mas antes de tudo lugares acolhedores e disponíveis para simplesmente “estar”.
|
|
|
|
|
 |
 |
 |
 |
 |
 |
 |
 |
 |
 |
 |
Solo
Um revestimento de piso uniforme na côr ocre terra dá unidade à todo o largo. Sobre ele vêem marcadas as linhas do antigo parcelário, restabelecendo a memória destes largos enquanto antigos fundos de quintais. A marcação do parcelário permite valorizar e dar sentido aos elementos relevantes existentes no interior das quadras, preservando-os como memória do lugar. Este desenho de piso delimita naturalmente espaços à serem apropriados pelos comerciantes. Nele se integram também as grilhas para drenagem de águas pluviais.
Cobertura
Velas tensas móveis, instaladas sob o beiral dos principais sobrados que circundam os largos, delimitam zonas cobertas e valorizam toda a altura das fachadas. Abertas ou recolhidas, elas liberam a visão sobre o conjunto do casario. Suas diferentes tonalidades e dimensões referenciam-se ao desenho do parcelário.
Elas são uma alusão poética ao imaginário popular, aos saveiros de pescadores, aos espaços de festas dos cultos religiosos afro-baianos.
|
|
| |
|
|
Fachadas
O conjunto das fachadas é pintado em tons claros. As empenas existentes em telha e tijolo aparente assim como os muros de pedra são revisados e valorizados. Paredes vegetalizadas põem em evidência outras empenas e fachadas importantes. Uma variedade de odores, sabores e cores emanam destas paredes cobertas de múltiplas espécies de plantas trepadeiras, flores e frutos tropicais. Instaladas em pontos estratégicos tais paredes contribuem à uma boa absorção do som além de melhorar o conforto climático da praça.
Estruturas
Os palcos removíveis são concebidos como estruturas cobertas situadas ao ar livre, à imagem dos antigos coretos de praças e jardins, sempre disponíveis ao improviso e ao uso informal enquanto lugares de reunião festiva. Em dias de espetáculos e concertos, os quiosques são equipados de vedações laterais, cortinas acústicas e equipamentos de som e luz adequados. Estas estruturas declinam-se também em quiosques de alimentação e de serviços. Estratégicamente situadas, elas pontuam e ordenam as diferentes praças.
|
|
| |
|
|
Acessibilidade
Criação de diversas possibilidades de contatos entre os imóveis existentes e os largos, afim de torná-los mais permeáveis, principalmente durante o dia. Cada imóvel com seu uso específico pode alimentar a vida do largo. Alguns deles são dotados de um deck de madeira, criando verdadeiras pontes com o largo. Tal estratégia visa incitar o uso diferenciado destes largos e torná-los mais conviviais, enquanto espaços agregadores e democráticos.
MAITRE D'OUVRAGE
IPAC Instituto do Patrimônio Artístico e Cultural da Bahia
ARCHITECTES
Serge Butikofer, Olivia de Oliveira, Olivier Vernay, Cecilia Perugini, Agnès Bitter, Zikret Pajaziti
En partenariat avec Rosangela de Campos Farpedue, Somar arquitetura e construção, Salvador Brasil
|
|
|
|
|
|
|
|
|
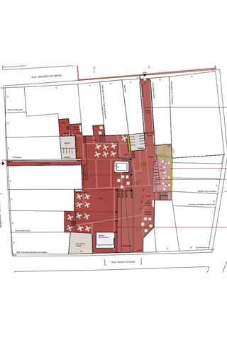
Trois cours au centre historique du Pelourinho, un seul réseau. Des interventions communes relient les 3 places, mais chacune est mise en valeur en gardant sa propre identité.
|
|
| Morphologie existante + nouveau dessin de sol qui retrace l’ancien parcellaire comme mémoire du lieu = nouvelle identité des espaces appropriables. |
|
Place Tereza Batista : l’aspect introverti et la multiplicité d’espaces sont valorisés par le traitement uniforme du sol. Par sa situation privilégiée, cette cour est traitée comme porte d’entrée au Pelourinho. Une nouvelle construction abri la scène en créant une nouvelle image sur la rue Gregório de Matos.
|
|
La perméabilité de la place se fait en intégrant les bâtiments autours, qui alimentent la vie à l’intérieur de la cour.
|
|
| Voiles tendues mobiles délimitent des zones couvertes en valorisant l’ensemble des façades. |
|
| Place Quincas Berro d'Agua, place de restauration. Plusieurs restaurants occupent le périmètre de la cour et donnent vie à la même. L’intervention souligne la forme longitudinale de la cour. |
|
| L’accès principal est par un boulevard entre les cocotiers et une grande paroi végétalisée. On est accueilli dans cette place par un parcours initiatique visuel, gustatif et odorat. |
|
Coté opposé, le vide dégagé par la belle ruine en brique est aménagé en une jolie placette, pouvant accueillir des banquets ainsi que des projections de cinéma open-air.
|
|
| Place Pedro Arcanjo. La morphologie ouverte de la cour est mise en valeur et elle est traitée comme un mirador. Des gradins soulignent la vocation de l’espace en tant que lieu de contemplation de l'ensemble bâti autour. |
|
| Les accès se font depuis des galeries fermées qui accentuent l’effet optique d’arrivée à un espace ouvert avec vue au loin. Ces galeries, utilisées comme espaces d’expositions, se prolongent jusqu’au belvédère des sculptures. |
|
Un escalier rampe connecte la place à une charmante petite cour à contrebas, en la valorisant et en créant une connexion directe entre le parking et le Pelourinho.
|
|
|
|
|
|
|
|